Trong những năm gần đây, thiết kế giếng trời cho nhà phố trở thành xu hướng được nhiều gia đình tại các đô thị quan tâm. Với đặc điểm quỹ đất hạn chế và nhà ống thường dài, hẹp, việc bố trí giếng trời không chỉ giúp tăng cường ánh sáng tự nhiên mà còn tạo sự thông thoáng và nâng cao giá trị thẩm mỹ cho không gian sống.
Trong bài viết này, 902 Studio giới thiệu mẫu thiết kế nhà phố 3 tầng hiện đại có giếng trời tại Hoài Đức – Hà Nội, cùng những lưu ý quan trọng khi thiết kế và thi công giếng trời cho nhà phố.

Nội dung chính
- 1 1. Thông tin công trình nhà phố 3 tầng hiện đại – BT216
- 2 2. Chi tiết mặt bằng các tầng trong bản vẽ nhà phố 3 tầng – BT216
- 3 3. Phương án thiết kế nhà biệt thự 3 tầng có giếng trời độc đáo ở Hà Nội – BT216
- 4 3. Quy mô và mặt bằng công năng của ngôi nhà
- 5 4. Những lưu ý quan trọng khi thiết kế giếng trời
- 6 5. Hồ sơ thiết kế nhà phố 3 tầng – BT216
- 7 6. Liên hệ tư vấn thiết kế
1. Thông tin công trình nhà phố 3 tầng hiện đại – BT216
- Chủ đầu tư: Chị Loan
- Địa điểm xây dựng: Hoài Đức – Hà Nội
- Đơn vị thiết kế: Công ty cổ phần thiết kế kiến trúc 902 Studio
Công trình được thiết kế theo phong cách hiện đại, chú trọng đến không gian mở, ánh sáng tự nhiên và sự kết nối giữa các khu vực trong nhà.
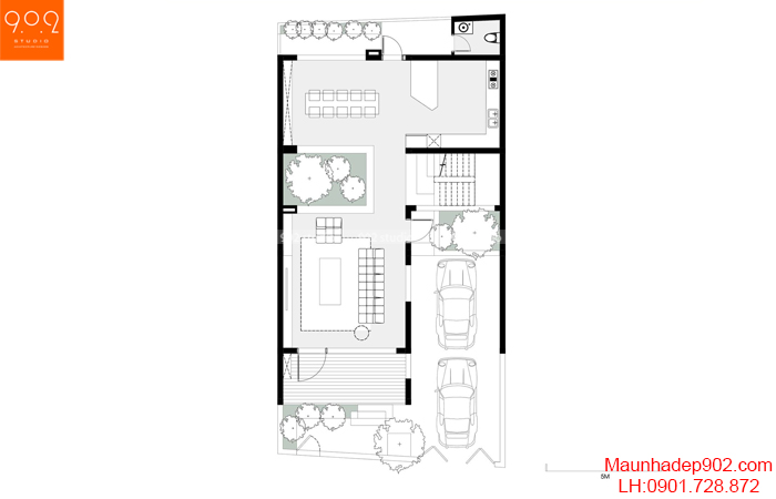
2. Chi tiết mặt bằng các tầng trong bản vẽ nhà phố 3 tầng – BT216
- Diện tích đất : 9.7x20m
- Tầng 1 : 140m2 : khách + bếp + ăn + gara + wc
- Tầng 2 : 3 phòng ngủ + 2wc
- Tầng 3 : Phòng thờ + Phòng làm việc + giặt phơi
3. Phương án thiết kế nhà biệt thự 3 tầng có giếng trời độc đáo ở Hà Nội – BT216
Những ngôi nhà phố tại đô thị thường chỉ có một mặt thoáng, vì vậy giếng trời trở thành giải pháp kiến trúc hiệu quả giúp cải thiện ánh sáng và lưu thông không khí.
Đối với công trình này, đội ngũ kiến trúc sư của 902 Studio đã lựa chọn giếng trời làm trung tâm của ngôi nhà, vừa đảm bảo yếu tố công năng vừa tạo điểm nhấn thẩm mỹ cho toàn bộ không gian.

Giếng trời – điểm kết nối của ngôi nhà
Giếng trời được thiết kế với kích thước hợp lý, bố trí nhiều cây xanh nhằm tạo nên một khoảng không gian gần gũi với thiên nhiên. Nhờ đó ánh sáng và gió tự nhiên có thể lan tỏa đến nhiều khu vực trong nhà, giúp không gian luôn thoáng đãng và dễ chịu.
Ngoài chức năng lấy sáng và thông gió, khu vực giếng trời còn đóng vai trò như trục kết nối giữa các tầng, giúp các thành viên trong gia đình có thể cảm nhận được sự liên kết giữa các không gian sinh hoạt.
Mặt tiền hiện đại với hệ lam gỗ
Phần mặt tiền của công trình sử dụng hệ lam gỗ vừa tạo điểm nhấn kiến trúc vừa giúp giảm bức xạ nhiệt từ ánh nắng mặt trời. Hệ lam này có thể đóng mở linh hoạt, góp phần hạn chế bụi và tác động từ môi trường bên ngoài.
Thiết kế này mang lại vẻ đẹp hiện đại nhưng vẫn gần gũi với thiên nhiên, phù hợp với phong cách kiến trúc nhiệt đới.

Không gian xanh trong ngôi nhà
Ngoài giếng trời, các khoảng xanh còn được bố trí ở phía trước, phía sau và khu vực gara. Những khoảng trống này giúp lưu thông không khí tốt hơn, đồng thời mang lại cảm giác thư giãn cho không gian sống.
Sự kết hợp giữa khối kiến trúc đặc – rỗng, không gian đóng – mở cùng các giải pháp thông gió tự nhiên đã giúp ngôi nhà khắc phục hiệu quả nhược điểm của nhà phố truyền thống.
Dưới ánh sáng tự nhiên, công trình toát lên vẻ đẹp hiện đại, mộc mạc và hài hòa với thiên nhiên.

3. Quy mô và mặt bằng công năng của ngôi nhà
Diện tích khu đất: 9.7 x 20m
Tầng 1 – Diện tích khoảng 140m²
Không gian tầng 1 được bố trí gồm:
-
Phòng khách
-
Khu bếp và phòng ăn
-
Gara ô tô
-
Nhà vệ sinh
Thiết kế mở giữa phòng khách và khu bếp giúp không gian rộng rãi và thuận tiện cho sinh hoạt gia đình.

Tầng 2
Tầng 2 là không gian nghỉ ngơi của gia đình gồm:
-
3 phòng ngủ
-
2 nhà vệ sinh
Các phòng ngủ được bố trí hợp lý để tận dụng ánh sáng và thông gió tự nhiên từ giếng trời.

Tầng 3
Tầng trên cùng bao gồm:
-
Phòng thờ
-
Phòng làm việc
-
Khu giặt phơi
Không gian được thiết kế thông thoáng, đảm bảo sự riêng tư nhưng vẫn liên kết với tổng thể kiến trúc của ngôi nhà.

4. Những lưu ý quan trọng khi thiết kế giếng trời
Giếng trời mang lại nhiều lợi ích cho nhà phố, tuy nhiên để đạt hiệu quả cao cần lưu ý một số yếu tố sau:
Lựa chọn vị trí phù hợp
Giếng trời nên được bố trí tại các khu vực trung tâm của ngôi nhà như khu vực cầu thang, phòng khách hoặc không gian sinh hoạt chung. Vị trí này giúp ánh sáng có thể lan tỏa đều đến các phòng xung quanh.
Xác định kích thước hợp lý
Kích thước giếng trời cần được tính toán phù hợp với diện tích tổng thể của ngôi nhà. Nếu quá lớn có thể làm tăng nhiệt vào mùa hè hoặc gây lạnh vào mùa đông, trong khi giếng trời quá nhỏ sẽ không mang lại hiệu quả chiếu sáng.
Chú ý yếu tố phong thủy
Theo quan niệm phong thủy, vị trí giếng trời cũng ảnh hưởng đến vận khí của ngôi nhà. Vì vậy cần tránh đặt giếng trời trực tiếp phía trên phòng ngủ hoặc khu vực bếp.
Giải pháp chống nóng
Để hạn chế nhiệt từ ánh nắng trực tiếp, nên sử dụng vật liệu lấy sáng có khả năng cách nhiệt và chống tia UV. Giải pháp này giúp duy trì nhiệt độ ổn định trong nhà nhưng vẫn đảm bảo nguồn ánh sáng tự nhiên.
5. Hồ sơ thiết kế nhà phố 3 tầng – BT216
Hồ sơ thiết kế của công trình bao gồm đầy đủ các hạng mục như:
-
Phối cảnh 3D kiến trúc ngoại thất
-
Mặt bằng công năng các tầng
-
Bản vẽ kiến trúc và kết cấu
-
Hệ thống điện, chiếu sáng và cấp thoát nước
-
Chi tiết thi công kỹ thuật
-
Thiết kế tiểu cảnh sân vườn, cổng và tường rào
Tất cả các phương án thiết kế đều được tư vấn theo phong thủy và tuổi của chủ đầu tư, đảm bảo kích thước phòng, chiều cao nhà và kích thước cửa phù hợp với thước phong thủy.
6. Liên hệ tư vấn thiết kế
Mỗi công trình do 902 Studio thực hiện đều là sự kết hợp giữa sáng tạo, kinh nghiệm và tâm huyết của đội ngũ kiến trúc sư nhằm mang đến không gian sống hoàn hảo cho gia chủ.
Nếu bạn đang có kế hoạch xây dựng nhà ở, hãy liên hệ với chúng tôi để được tư vấn thiết kế miễn phí và lựa chọn giải pháp phù hợp nhất cho ngôi nhà của mình.
Hotline: 0901 728 872
902 Studio – Thiết kế kiến trúc và xây nhà trọn gói