Trong kiến trúc hiện đại, sự sang trọng không còn đến từ những chi tiết cầu kỳ hay trang trí phức tạp, mà được thể hiện qua tỷ lệ hình khối, vật liệu và không gian sống thông minh. Mẫu biệt thự 2 tầng phong cách tối giản – BT218 là một minh chứng rõ nét cho triết lý đó.
Với bố cục hình khối mạnh mẽ, hệ cửa kính lớn kết hợp cùng các mảng vật liệu tinh tế, công trình mang đến một không gian sống thoáng đãng, hiện đại và đậm chất nghỉ dưỡng. Thiết kế không chỉ chú trọng tính thẩm mỹ mà còn tối ưu công năng, ánh sáng tự nhiên và sự kết nối với thiên nhiên xung quanh.
Đây là lựa chọn lý tưởng dành cho những gia chủ yêu thích lối sống hiện đại, tinh gọn nhưng vẫn đảm bảo sự sang trọng và tiện nghi.

Nội dung chính
1. Thông tin công trình thiết kế biệt thự 2 tầng tối giản – BT218
- Chủ đầu tư: Anh Khánh (Yên Thế – Bắc Giang)
- Địa chỉ: Hoài Đức – Hà Nội
- Đơn vị thiết kế: Công ty Cổ phần Thiết kế Kiến trúc 902 Studio
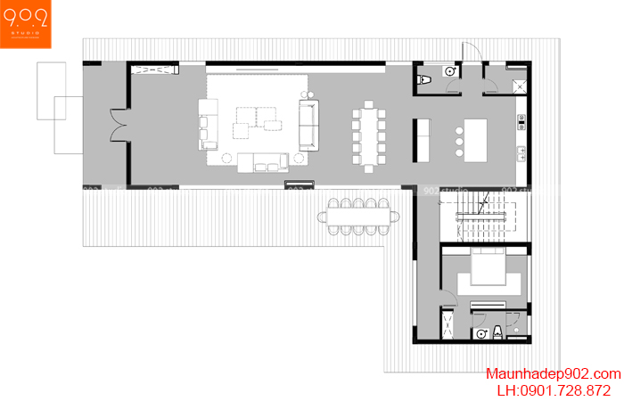
2. Chi tiết mặt bằng các tầng trong bản vẽ biệt thự 2 tầng – BT218
Công trình được bố trí công năng khoa học, đảm bảo sự tiện nghi cho sinh hoạt gia đình nhiều thế hệ.
- Tầng 1: 250m²
Phòng khách + bếp + phòng ăn + WC + giặt phơi + phòng ngủ ông bà - Tầng 2: 250m²
4 phòng ngủ + 4 WC
3. Phương án thiết kế biệt thự hiện đại – BT218
Ngôi nhà được thiết kế theo phong cách Hiện đại – Tối giản, tập trung vào các hình khối hình học rõ ràng, chủ yếu là các khối hộp chữ nhật và đường nét thẳng. Triết lý thiết kế nổi tiếng “Less is more” được áp dụng triệt để, loại bỏ các chi tiết trang trí rườm rà để tôn vinh vẻ đẹp của không gian, vật liệu và ánh sáng tự nhiên.
Thiết kế mang lại cảm giác thanh lịch, gọn gàng nhưng vẫn toát lên sự sang trọng và đẳng cấp.
Các điểm nổi bật về cấu trúc kiến trúc
Hình khối “bay” ấn tượng (Cantilever)
Điểm nhấn đặc biệt của công trình là khối tầng 2 được thiết kế nhô ra so với tầng 1. Kiểu kết cấu console này không chỉ tạo hiệu ứng thị giác độc đáo mà còn hình thành một khoảng hiên rộng phía dưới, giúp che nắng, che mưa và tăng chiều sâu cho mặt tiền.
Nhờ vậy, tổng thể ngôi nhà trông nhẹ nhàng và hiện đại, như đang “bay” trên không trung.
Bố cục hình chữ L thông minh
Thiết kế mặt bằng theo dạng chữ L giúp công trình mở rộng tối đa sự kết nối với không gian sân vườn. Các phòng trong nhà đều có tầm nhìn ra khoảng sân chung, đồng thời tận dụng được ánh sáng tự nhiên và sự thông thoáng.

Hệ cửa kính kịch trần
Ngôi nhà sử dụng các mảng kính lớn thay cho những bức tường bê tông kín. Giải pháp này giúp xóa nhòa ranh giới giữa không gian bên trong và bên ngoài, mang lại cảm giác rộng rãi, thoáng đãng và hiện đại cho toàn bộ công trình.
Sự ấn tượng và khác biệt của công trình
Vật liệu và màu sắc tinh tế
Công trình sử dụng tone trắng chủ đạo kết hợp với đá ốp vân ngang màu kem tại tầng 1, tạo nên cảm giác sang trọng và bền vững theo thời gian.
Phần trần dưới của ban công được ốp gỗ hoặc vật liệu giả gỗ, mang lại sự ấm áp và tạo điểm nhấn tương phản thú vị với các vật liệu hiện đại như bê tông và kính.
Sự đối lập giữa đặc và rỗng
Các mảng tường lớn (đặc) được bố trí xen kẽ với những khoảng kính rộng và ban công dài (rỗng). Sự tương phản này tạo nên nhịp điệu kiến trúc mạnh mẽ và đầy tính thẩm mỹ, giúp mặt tiền trở nên sinh động và thu hút.

Không gian thư giãn ngoài trời
Tại góc chữ L của ngôi nhà là khu vực bàn ăn ngoài trời rộng rãi – nơi lý tưởng cho các buổi tụ họp gia đình hoặc những bữa tiệc nhỏ trong không gian mở. Đây là chi tiết thể hiện rõ triết lý sống gắn kết và tận hưởng thiên nhiên của gia chủ.
Lan can tối giản
Hệ lan can sắt thanh mảnh màu đen chạy dọc theo tầng 2 vừa đảm bảo an toàn vừa giữ được tầm nhìn thông thoáng, không phá vỡ sự liền mạch của tổng thể kiến trúc.

Ưu điểm của mẫu biệt thự này
- Thông gió và ánh sáng tự nhiên tốt:
Nhờ hệ cửa kính lớn và bố cục không gian mở, ngôi nhà luôn tràn ngập ánh sáng và không khí tự nhiên. - Thẩm mỹ bền vững theo thời gian:
Phong cách tối giản giúp công trình giữ được vẻ đẹp hiện đại và không bị lỗi thời. - Không gian sống mang tính nghỉ dưỡng:
Thiết kế mở, gần gũi thiên nhiên tạo cảm giác thư giãn như đang sống trong một khu resort cao cấp.
Lưu ý trong thiết kế:
Với hệ kính lớn tại Việt Nam, cần sử dụng các giải pháp chống nóng như kính hộp cách nhiệt, rèm thông minh hoặc lam chắn nắng để đảm bảo sự thoải mái cho không gian sống.
4. Mặt bằng công năng các tầng
Tầng 1: 250m²
Phòng khách + bếp + phòng ăn + WC + giặt phơi + phòng ngủ ông bà

Tầng 2: 250m²
4 phòng ngủ + 4 WC

5. Hồ sơ thiết kế bản vẽ biệt thự 2 tầng hiện đại – BT218
Bộ hồ sơ thiết kế bao gồm đầy đủ:
-
Phối cảnh 3D kiến trúc
-
Mặt tiền và các mặt bên công trình
-
Chi tiết mặt bằng công năng các tầng
-
Mặt bằng bố trí nội thất
-
Bản vẽ mặt cắt kỹ thuật
-
Hồ sơ thiết kế kết cấu
-
Thiết kế điện chiếu sáng, điện sinh hoạt
-
Hệ thống cấp thoát nước
-
Thiết kế cổng, tường rào và cảnh quan sân vườn
Toàn bộ hồ sơ thiết kế được tư vấn và tính toán phù hợp với phong thủy, tuổi của chủ đầu tư. Kích thước phòng, chiều cao nhà và kích thước cửa đều được thiết kế theo thước Lỗ Ban phong thủy, đảm bảo sự hài hòa giữa thẩm mỹ và yếu tố tâm linh.
Với mỗi công trình, 902 Studio luôn đặt trọn tâm huyết, sự sáng tạo và trách nhiệm nhằm mang đến những không gian sống hoàn hảo cho khách hàng.
Hotline tư vấn miễn phí: 0901 728 872
902 Studio luôn sẵn sàng đồng hành cùng bạn để kiến tạo nên ngôi nhà mơ ước.