Mẫu biệt thự BT223 là sự kết hợp hài hòa giữa tư duy kiến trúc hiện đại và triết lý sống xanh đang trở thành xu hướng của đô thị mới. Không chỉ chú trọng đến vẻ đẹp ngoại thất, công trình còn tạo dựng một hệ sinh thái thu nhỏ, nơi con người và thiên nhiên giao hòa trong từng khoảnh khắc sinh hoạt.

Nội dung chính
- 1 1. Thông tin công trình biệt thự 3 tầng hiện đại – BT223
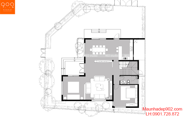
- 2 2. Mặt bằng công năng biệt thự 3 tầng hiện đại Hà Nam – BT223
- 3 3. Phương án thiết kế & không gian sống của mấu biệt thự 3 tầng hiện đại – BT223
- 4 4. Mặt bằng công năng biệt thự 3 tầng hiện đại mái nhất – tiện nghi cho từng thành viên
- 5 5. Hồ sơ thiết kế bản vẽ biệt thự 3 tầng hiện đại mái nhật – BT223
1. Thông tin công trình biệt thự 3 tầng hiện đại – BT223
- Chủ đầu tư: Anh Toàn – Phúc Yên
- Địa điểm: Phúc Yên
- Đơn vị thiết kế: Công ty Cổ phần Thiết kế Kiến trúc 902 Studio
Ngay sau khi tiếp nhận dự án, đội ngũ kiến trúc sư 902 Studio đã trực tiếp khảo sát hiện trạng, tìm hiểu thói quen sinh hoạt, gu thẩm mỹ và các yêu cầu phong thủy của gia chủ. Từ đó, phương án thiết kế được tối ưu hóa, đảm bảo đẹp – đúng phong thủy – mang dấu ấn riêng biệt của chủ nhà.
2. Mặt bằng công năng biệt thự 3 tầng hiện đại Hà Nam – BT223
Diện tích khu đất 250m2:
- Tầng 1 : 145m2 : Phòng khách + bếp + ăn + Phòng thờ + Phòng ngủ ông bà + wc
- Tầng 2 : 3 phòng ngủ + 2wc + sinh hoạt chung
- Tầng tum : Phòng giặt phơi + kho
3. Phương án thiết kế & không gian sống của mấu biệt thự 3 tầng hiện đại – BT223
Ngay từ ánh nhìn đầu tiên, biệt thự gây ấn tượng bởi những khối vuông vức, được sắp đặt có chủ đích để tạo nên bố cục “đặc – rỗng” rõ ràng. Các mảng tường xám trung tính kết hợp cùng những ô kính lớn không chỉ mang lại vẻ đẹp mạnh mẽ mà còn giúp công trình trở nên nhẹ nhàng, thoát hình so với các khối bê tông truyền thống.
Hệ mái Nhật dốc nhẹ chính là điểm nhấn hoàn thiện tổng thể. Hình khối mái cân đối tạo cảm giác thanh thoát, đồng thời mang đến khả năng thoát nước – chống nóng – chống thấm hiệu quả. Màu mái trầm hòa quyện với gam xám – trắng chủ đạo của ngoại thất, tạo nên bảng màu bền vững và sang trọng qua thời gian.
Các điểm nhấn gỗ tại trần ban công và cửa chính đóng vai trò như “chất xúc tác” giúp tổng thể trở nên ấm cúng, gần gũi hơn mà vẫn giữ trọn nét thời thượng đặc trưng của kiến trúc hiện đại.

Không gian xanh đa tầng giữa thành phố
Điểm nổi bật nhất của biệt thự BT223 chính là cách sử dụng cây xanh như một phần cấu trúc của ngôi nhà. Thay vì chỉ bố trí sân vườn ở tầng trệt, gia chủ được tận hưởng mảng xanh ở tất cả các tầng – từ tầng 1 đến ban công tầng 2 và lên tới sân thượng. Mảng xanh ấy tạo nên cảm giác như ngôi nhà đang “thở”, luôn tươi mới và tràn đầy năng lượng.
- Bồn cây chạy dọc ban công tạo nên một “tường xanh” tự nhiên, lọc bụi – giảm ồn – giảm bức xạ nhiệt cho toàn bộ mặt tiền.
- Lan can kính trong suốt cho phép ánh nhìn mở rộng, xóa nhòa khoảng cách giữa nội thất và thiên nhiên bên ngoài.
- Hệ thực vật nhiệt đới như dương xỉ, cọ lá nhỏ… được bố trí sát tường rào giúp làm mềm khối kiến trúc, mang lại cảm giác mát mẻ và riêng tư hơn cho không gian sống.
Nhờ sự kết hợp này, ngôi nhà trở thành một “resort mini”, nơi mỗi thành viên đều có thể tận hưởng không khí trong lành và cảm giác thư thái ngay trong chính tổ ấm của mình.

Giải pháp ánh sáng – Không gian mở đón trọn nắng gió
Với triết lý “ánh sáng là linh hồn của ngôi nhà”, kiến trúc sư sử dụng hệ cửa nhôm kính diện tích lớn tại hầu hết các mặt tiền. Điều này giúp không gian bên trong đón được tối đa ánh sáng tự nhiên, tiết kiệm điện năng và mang đến sự thông thoáng suốt cả ngày.
- Kính kịch trần tạo hiệu ứng kéo dài chiều cao, khiến các phòng sáng rộng và thoáng hơn.
- Ban công rộng hoạt động như lớp “đệm nắng”, hạn chế ánh nắng chiếu thẳng vào nhà trong những ngày oi bức.
- Vào buổi tối, ánh đèn vàng phản chiếu từ trần gỗ và ban công mang đến vẻ đẹp lung linh và sang trọng, khiến cả ngôi nhà tỏa sáng như một chiếc đèn lồng giữa khu phố.
Bền vững, thẩm mỹ và hợp phong thủy
Toàn bộ công trình được nghiên cứu dựa trên yếu tố phong thủy, khai thác tối ưu sự cân bằng giữa Mộc (cây xanh) – Thổ (vật liệu) – Thủy (nếu có hồ nước, bể cá), từ đó tạo nên nguồn năng lượng hài hòa cho gia chủ.
Điều làm nên giá trị bền vững chính là:
- Sống xanh chuẩn resort, thư giãn mỗi ngày ngay tại nhà
- Giảm nhiệt tự nhiên, chống nóng mà không phụ thuộc quá nhiều vào điều hòa
- Không gian mở, hạn chế bí bách, tăng chất lượng không khí
- Thiết kế hiện đại, không lỗi mốt theo thời gian
Tất cả tạo nên một tổng thể vừa đẹp – vừa tiện nghi – vừa có chiều sâu cảm xúc, xứng đáng là không gian sống lý tưởng của gia đình hiện đại.

4. Mặt bằng công năng biệt thự 3 tầng hiện đại mái nhất – tiện nghi cho từng thành viên
Không chỉ đẹp, biệt thự BT223 còn sở hữu bố cục công năng được tính toán kỹ lưỡng:
- Tầng 1 ưu tiên không gian sinh hoạt chung: phòng khách, bếp – ăn rộng rãi và phòng ngủ ông bà thuận tiện di chuyển.

- Tầng 2 là không gian riêng tư với 3 phòng ngủ và khu sinh hoạt chung gắn kết các thành viên.
- Tầng tum đáp ứng nhu cầu giặt phơi và kho chứa, đảm bảo gọn gàng và khoa học.
Cách bố trí này giúp gia đình nhiều thế hệ có thể sinh hoạt thoải mái mà không ảnh hưởng đến sự riêng tư của từng cá nhân.
5. Hồ sơ thiết kế bản vẽ biệt thự 3 tầng hiện đại mái nhật – BT223
Bộ hồ sơ hoàn chỉnh bao gồm:
- Phối cảnh kiến trúc 3D
- Bản vẽ mặt đứng – mặt bên
- Mặt bằng công năng chi tiết
- Thiết kế nội thất
- Bản vẽ kết cấu
- Điện chiếu sáng – điện sinh hoạt
- Hệ thống cấp thoát nước
- Thiết kế cổng – hàng rào – cảnh quan sân vườn
- Tất cả đều được xử lý theo phong thủy – thước Lỗ Ban, đảm bảo sự hài hòa về thẩm mỹ lẫn năng lượng sống.
902 Studio luôn đặt trọn tâm huyết trong từng công trình để tạo nên một tổ ấm không chỉ đẹp mà còn truyền cảm hứng mỗi ngày.
Hotline tư vấn miễn phí: 0901 728 872
*902 Studio – Kiến tạo không gian sống chuẩn mực cho gia đình Việt.